Dining Room Light Fixture Height

Standard Height Of Dining Table Light Fixture Homedecor In 2020 Dining Room Chandelier Dining Room Lighting Home Decor

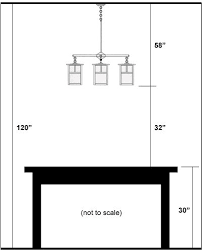
Standard Height Of Dining Table Light Fixture Homedecor In 2020 Dining Room Chandelier Dining Room Lighting Home Decor

Put A Little 10 Design Tips That This Girl Lives By Dining Table Height Dining Table Lighting Dining Room Lighting

Put A Little 10 Design Tips That This Girl Lives By Dining Table Height Dining Table Lighting Dining Room Lighting

That S The Width Of Most Dining Tables Description From Designinghome Blogspot Com I Searched F Dining Lighting Lights Over Dining Table Dining Room Lighting

That S The Width Of Most Dining Tables Description From Designinghome Blogspot Com I Searched F Dining Lighting Lights Over Dining Table Dining Room Lighting

17 Best Dining Room Light Height In 2020 Lights Over Dining Table Dining Room Pendant Pendant Lighting Dining Room

17 Best Dining Room Light Height In 2020 Lights Over Dining Table Dining Room Pendant Pendant Lighting Dining Room

How To Size A Dining Room Chandelier 3 Easy Steps Dining Room Chandelier Dining Lighting Dinning Room Tables

How To Size A Dining Room Chandelier 3 Easy Steps Dining Room Chandelier Dining Lighting Dinning Room Tables

All In The Details Ceiling Fixtures Circa Lighting Dinning Room Lighting Dining Table Pendant Light Ceiling Fixtures

All In The Details Ceiling Fixtures Circa Lighting Dinning Room Lighting Dining Table Pendant Light Ceiling Fixtures

All In The Details Ceiling Fixtures Circa Lighting Dinning Room Lighting Dining Table Pendant Light Ceiling Fixtures

Chandelier Height Guide Bellacor Low Ceiling Chandelier Ceiling Height Dining Room Chandelier

Chandelier Height Guide Bellacor Low Ceiling Chandelier Ceiling Height Dining Room Chandelier

How High To Hang Pendant Lights Kitchen Island Lighting Pendant Dining Table Pendant Light Kitchen Island Height

How High To Hang Pendant Lights Kitchen Island Lighting Pendant Dining Table Pendant Light Kitchen Island Height

Studio Mcgee Guide How To Choose Light Fixture How High To Hang Light Fixture In Din In 2020 Hanging Light Fixtures Dining Room Table Light Dining Room Light Fixtures

Studio Mcgee Guide How To Choose Light Fixture How High To Hang Light Fixture In Din In 2020 Hanging Light Fixtures Dining Room Table Light Dining Room Light Fixtures

Chandelier And Pendant Heights Dining Room Chandelier Dining Table Chandelier Arts And Crafts Interiors

Chandelier And Pendant Heights Dining Room Chandelier Dining Table Chandelier Arts And Crafts Interiors

Chandelier Height Measurements Guide Chandelier In Living Room Home Room Design Dining Table Chandelier

Chandelier Height Measurements Guide Chandelier In Living Room Home Room Design Dining Table Chandelier

How To Hang A Chandelier At The Perfect Height Overstock Com In 2020 Dining Room Lighting Dining Table Lighting Dining Room Chandelier

How To Hang A Chandelier At The Perfect Height Overstock Com In 2020 Dining Room Lighting Dining Table Lighting Dining Room Chandelier

Schoolhouse 101 Hanging Pendants Chandeliers Hanging Pendants Dining Room Chandelier Pendant Chandelier

Schoolhouse 101 Hanging Pendants Chandeliers Hanging Pendants Dining Room Chandelier Pendant Chandelier

Dramatic Pendant Lights Great With A Full Height Ceiling Modern Dining Room Dining Table Lamps Living Room Lighting

Dramatic Pendant Lights Great With A Full Height Ceiling Modern Dining Room Dining Table Lamps Living Room Lighting

Chandelier Height Guide Bellacor Ceiling Height Lights Over Dining Table Ceiling Chandelier

Chandelier Height Guide Bellacor Ceiling Height Lights Over Dining Table Ceiling Chandelier

When Hanging A Chandelier Make Sure That It S Low Enough To Light The Eating Area Without Interferi Coastal Dining Room Farmhouse Dining Farmhouse Dining Room

When Hanging A Chandelier Make Sure That It S Low Enough To Light The Eating Area Without Interferi Coastal Dining Room Farmhouse Dining Farmhouse Dining Room

The Property Brothers Design Cheat Sheet That You Need Dining Room Chandelier Dining Room Light Fixtures Property Brothers Designs

The Property Brothers Design Cheat Sheet That You Need Dining Room Chandelier Dining Room Light Fixtures Property Brothers Designs

Different Heights Esszimmer Beleuchtung Esstisch Beleuchtung Kronleuchter Modern

Different Heights Esszimmer Beleuchtung Esstisch Beleuchtung Kronleuchter Modern

Chandelier Ceiling Height Guide To Scale Cheat Sheet Bellacor Bright Ideas Blog Ceiling Height Lights Over Dining Table Ceiling Chandelier

Chandelier Ceiling Height Guide To Scale Cheat Sheet Bellacor Bright Ideas Blog Ceiling Height Lights Over Dining Table Ceiling Chandelier

מותק הילדים עזבו את הקן שיפוץ של בית ברמת השרון Dining Room Pendant Chandelier In Living Room Dining Table Pendant Light

מותק הילדים עזבו את הקן שיפוץ של בית ברמת השרון Dining Room Pendant Chandelier In Living Room Dining Table Pendant Light

Source : pinterest.com