Height Of Bathroom Vanity Outlet

Image Result For Power Outlet Heights Bathroom Outlet Bathroom Light Switch Electrical Outlet Placement

Image Result For Power Outlet Heights Bathroom Outlet Bathroom Light Switch Electrical Outlet Placement

What Is The Required Minimum Height Aff Of A Electrical Wall Outlet According To Nyc Codes Wall Outlets Electrical Code Electrical Outlets

What Is The Required Minimum Height Aff Of A Electrical Wall Outlet According To Nyc Codes Wall Outlets Electrical Code Electrical Outlets

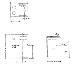
Standard Rough In Height For Bathroom Sink Drain Design Ideas Bath My Web Value Bathroom Sink Drain Sink Drain Bathroom Sink

Standard Rough In Height For Bathroom Sink Drain Design Ideas Bath My Web Value Bathroom Sink Drain Sink Drain Bathroom Sink

Plumbing Bathroom Sink Height Bathroom Sink Drain Sink Drain Bathroom Sink

Plumbing Bathroom Sink Height Bathroom Sink Drain Sink Drain Bathroom Sink

The Best Height For Your Light Switches Bathroom Mirror Light Fixtures Light Switch Bathroom Light Switch

The Best Height For Your Light Switches Bathroom Mirror Light Fixtures Light Switch Bathroom Light Switch

Sink Drain Height Bathroom My Web Value Sink Drain Bathroom Sink Drain Bathroom Sink Plumbing

Sink Drain Height Bathroom My Web Value Sink Drain Bathroom Sink Drain Bathroom Sink Plumbing

Sink Drain Height Bathroom My Web Value Sink Drain Bathroom Sink Drain Bathroom Sink Plumbing

Clădire De Locuințe Regulate Dimensiunile și Plasare Corespunzătoare Cea Mai Bună Resursă Inginerie On Line Bathroom Dimensions Ada Bathroom Room Dimensions

Clădire De Locuințe Regulate Dimensiunile și Plasare Corespunzătoare Cea Mai Bună Resursă Inginerie On Line Bathroom Dimensions Ada Bathroom Room Dimensions

Standard Bathroom Vanity Width Standard Bathroom Vanity Depth Standard Bathroom Vanity Height Bathroom Bathroom Dimensions Bathroom Sink Bathroom Vanity Sizes

Standard Bathroom Vanity Width Standard Bathroom Vanity Depth Standard Bathroom Vanity Height Bathroom Bathroom Dimensions Bathroom Sink Bathroom Vanity Sizes

Pin By Romiras On Bathrooms Bathroom Vanity Bathroom Vanity Sizes Home Depot Bathroom Vanity

Pin By Romiras On Bathrooms Bathroom Vanity Bathroom Vanity Sizes Home Depot Bathroom Vanity

Norms For Installing Switches And Sockets Recommendations For The Height Of The Installation House Wiring Three Bedroom House Plan Apartment Furniture Layout

Norms For Installing Switches And Sockets Recommendations For The Height Of The Installation House Wiring Three Bedroom House Plan Apartment Furniture Layout

Standard Height For Bathroom Vanity Drain In 2020 Bathroom Sink Drain Sink Drain Bathroom Sink

Standard Height For Bathroom Vanity Drain In 2020 Bathroom Sink Drain Sink Drain Bathroom Sink

Hidden Powerpoints Bathroom Drawers Bathrooms Remodel Bathroom Upgrades

Hidden Powerpoints Bathroom Drawers Bathrooms Remodel Bathroom Upgrades

Bathroom Outlet Height Bathroom Interior Design Contemporary In 2019 Rustic Bathroom Designs Bathroom Steam Showers Bathroom

Bathroom Outlet Height Bathroom Interior Design Contemporary In 2019 Rustic Bathroom Designs Bathroom Steam Showers Bathroom

Outlet On Shelf Under Sink Consider This Or On The Side Wall Of Shelf Bathroom Vanity Storage Bathroom Outlet Bathroom Appliances

Outlet On Shelf Under Sink Consider This Or On The Side Wall Of Shelf Bathroom Vanity Storage Bathroom Outlet Bathroom Appliances

Pin By Galia Fi On Bathroom Toilet Suites Bathroom Layout Plans Caroma

Pin By Galia Fi On Bathroom Toilet Suites Bathroom Layout Plans Caroma

Hidden Kitchen Outlets Design Pictures Remodel Decor And Ideas Page 2 By Juliette Small Master Bathroom

Hidden Kitchen Outlets Design Pictures Remodel Decor And Ideas Page 2 By Juliette Small Master Bathroom

Avenue Centrale En Suite Appliance Garage In Bathroom Allows Access From Both Sinks Outlet In Bathroom Remodel Master Bathroom Inspiration Bathrooms Remodel

Avenue Centrale En Suite Appliance Garage In Bathroom Allows Access From Both Sinks Outlet In Bathroom Remodel Master Bathroom Inspiration Bathrooms Remodel

How High To Install An Outlet Above A Bathroom Vanity Gfci Laundry Room Bathroom Bathroom

How High To Install An Outlet Above A Bathroom Vanity Gfci Laundry Room Bathroom Bathroom

Vanity Outlet Drawer In 2020 Bathroom Vanity Drawers Drawer Design Rev A Shelf

Vanity Outlet Drawer In 2020 Bathroom Vanity Drawers Drawer Design Rev A Shelf

A Quick Look At How Bathroom Vanity Drawer Outlets Work And How To Get One Modern Master Bathroom Bathroom Vanity Drawers Master Bathroom Design

A Quick Look At How Bathroom Vanity Drawer Outlets Work And How To Get One Modern Master Bathroom Bathroom Vanity Drawers Master Bathroom Design

Source : pinterest.com